Skip to content
News Archive » Page title auto-generated here

New Consulting Room (Sala Medica)

Posted on 18 February 2016

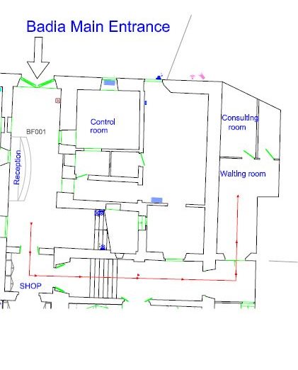
As of Monday 22 February 2016 the EUI’s consulting room (Sala Medica) will be moved to Badia Fiesolana, next to the Canteen.

  NewConsultingRoom_map

 

Go back to top of the page